By Matthew Chan

Villa Tugendhat is exactly what its name suggests. Ludwig Mies van der Rohe, one of the pioneering architects in the modern architecture movement, built it for industrialist Fritz Tugendhat, and his wife Greta, completing the building in 1930. Its use of space and material choices are deemed ahead of its time, and fitting perfectly into the realm of the Bauhaus style.

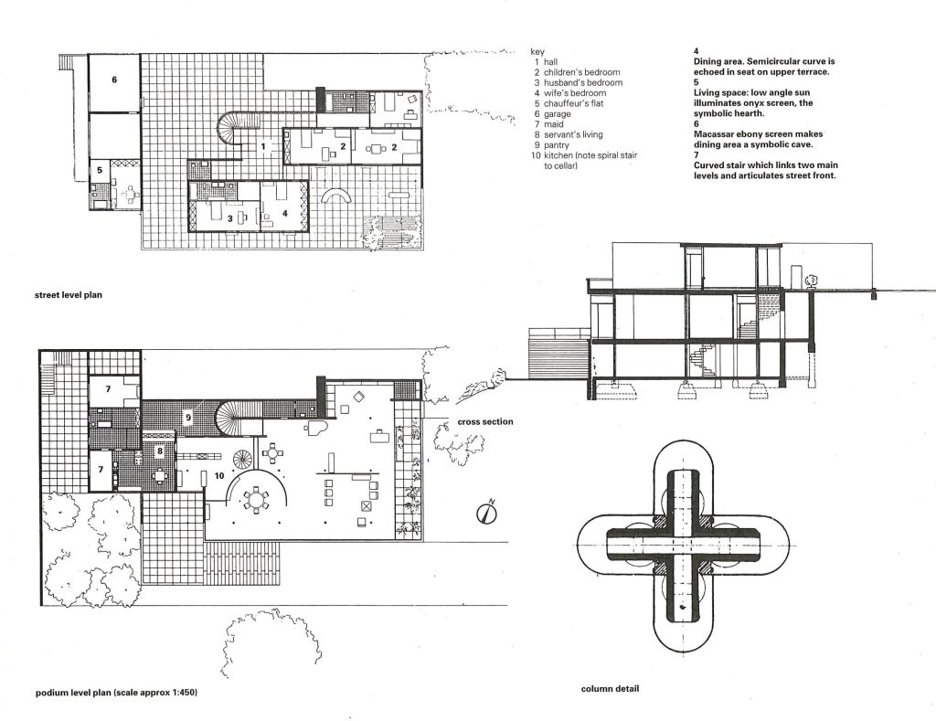
Mies, a director of the Bauhaus school himself, revolutionized the architectural world with his signature style of simplicity and functionality. The design principles were clearly demonstrated in Villa Tugendhat. He implemented the iron framework structure into the villa, allowing him to clear out supporting walls for maximum freedom on arranging the interiors. To extend his influence into the villa itself, Mies went on to collaborate with designer Lilly Reich to customize the furniture inside. They came up with the Tugendhat chair and the Brno chair, two pieces of furniture boasting simple forms and steel frames, to be put inside the building. These chairs would go on to become classic furniture designs and are still in production today.

To make good use of light, Mies installed tall, thin pieces of glass panes as part of the facade, allowing the most amount of natural light to reach the interiors. One of the walls even featured an automated sliding glass sheet that could descend into the basement. Further experimenting with light, an onyx wall was included as part of the interior. Its reflective nature means that its appearance would change with the lighting conditions, altering the mood during different times of the day. With the use of glass, Mies incorporated the outside view as an integral part of the architecture itself, allowing a connection with the scenery from outside.
Because of its forward-thinking design and challenging execution, the villa was expensive to build despite its seemingly simplistic and bare nature. Mies made sure that the villa needed to be an ideal dwelling, even taking into consideration the heating and ventilation systems. Together, it is a prime example of how architectural design can surpass its visual aspect, to reach into the needs of the client and interact with its surrounding environment.
